Sprache

Die freie und offene Büro-Software
Verfügbar: Apache OpenOffice 4.1.16
[zurück] [Hauptmenü] [weiter]
[PDF]

Anfertigen einer Zeichnung mit Maßlinien

Zeichnung mit Maßlinien
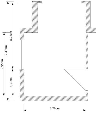
Abbildung 1: Zeichnung mit Maßlinien
In Abbildung 1 sehen Sie einen Grundriss, der über Maßlinien gezeichnet ist.

Wenn Sie so eine Zeichnung anfertigen, empfiehlt es sich, im Menü Ansicht - Ebenen die Ebenen sichtbar zu machen. Es erscheinen nun unten die drei Registerkarten Layout, Controls und Maßlinien. Dies sind die drei Standard-Ebenen. Über das Kontextmenü der Ebenen lassen sich noch neue Ebenen definieren. Auf der Layout-Ebene kann man dann das eigentliche Objekt zeichnen, auf der Control-Ebene befinden sich die Fanglinien und -punkte, und in der Maßlinien-Ebene kann man die Bemaßung anbringen.

Tip

Durch einen Doppelklick auf die Registerkarte der Ebene, kann man mit dem Kontrollkästchen „sichtbar“, die jeweilige Ebene ausblenden. Ausgeblendete Ebenen bekommen eine blaue Registerkarte.

Die Fanglinien haben den Vorteil, dass man genau zeichnen und die Bemaßung exakt anbringen kann.

Ebenenansicht
Abbildung 2: Die Ebenenansicht
Um dem Objekt Maßlinien hinzuzufügen, klicken Sie auf die Schaltfläche „Maßlinie“ Maßlinien hinzuzufügen und Ziehen Sie die Maßlinie wie oben beim Traktordach beschrieben auf. Dabei müssen Sie beachten, dass die Maßlinie von unten nach oben aufgezogen werden muss, wenn die Hilfslinien nach rechts zeigen sollen. Entsprechendes gilt dann für die anderen Seiten.

The ASF

Copyright & License | Privacy | Contact Us | Donate | Thanks

Apache, OpenOffice, OpenOffice.org and the seagull logo are registered trademarks of The Apache Software Foundation. The ASF logo is a trademark of The Apache Software Foundation. Other names appearing on the site may be trademarks of their respective owners.